The Prospect House es una lujosa casa con oficina, construida en una zona residencial de San Diego (California). Se ubica en una parcela de 669m2 que hace esquina, y tiene una difícil geometría triangular. El arquitecto la construyó para su familia, pero también para que le sirviera de lugar de trabajo, gracias a un interesante espacio que planteó en su sótano. A pesar de ser un edificio relativamente reciente, su decoración y mobiliario es un gustazo para los amantes de lo vintage y las alfombras peludas.

Lujosa casa con oficina y suelo de vidrio
Planta sótano
La casa se organiza en tres plantas, pero además tiene un sótano que funciona como estudio de arquitectura. A él se accede directamente desde el exterior (junto al garaje), y también por la escalera principal del edificio. Todos los detalles que describimos se aprecian en las imágenes y planos de la casa. Aquí hay que aclarar que el arquitecto no publicó el plano de la planta sótano.

Planta Baja
La planta baja es prácticamente el salón de la casa, que está muy abierto hacia sus laterales. Por un lado hay una piscina, y por el opuesto un porche que comunica con el jardín. Uno de los detalles más impactantes de la Casa Prospect es el suelo de vidrio que se ha construido en el porche, y que sirve para garantizar una importante fuente de luz natural en las oficinas del sótano.
Como viene siendo habitual en este tipo de casas modernas, la cocina y el comedor son espacios integrados al salón. Un extremo de esta sala ha quedado revestido de madera y está ocupado por armarios. Toda esta zona forma parte de la cocina.
Al otro lado de la piscina hay una sala pequeña que tiene un patio, y un aseo con ducha. Esto provoca que en días lluviosos se tenga que subir al baño de la primera planta, ya que el acceso a ese pabellón no está cubierto.

Planta primera
En la planta primera hay dos dormitorios, cada uno con baño propio y vestidor. Pero hay otro cuarto de baño que se ha dejado para uso general de toda la casa. Aquí encontramos otro aspecto bastante cuestionable en el diseño de este proyecto: hay un largo pasillo dentro del segundo dormitorio.
Cada habitación tiene una pequeña terraza con vistas a la piscina, a ambos lados de un volumen revestido de paneles de madera. Este elemento de fachada plantea muchas preguntas en IS-ARQuitectura sobre su funcionalidad, cosa que el arquitecto autor tampoco aclara.
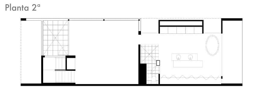
Planta segunda
La última planta está destinada exclusivamente al dormitorio principal. Está tratado como una suite, con un gran cuarto de baño, con ducha y bañera aislada. Cuenta además con una terraza en una de sus esquinas. Aquí vemos que el misterioso volumen de fachada (revestido de madera) parece ser una batería de armarios, pero con un hueco posterior.

Esta lujosa casa con oficina es un proyecto de Jonathan Segal. Es un arquitecto que no tiene ningún reparo en publicar casi todos los planos de sus proyectos. Además su web está carente de cualquier código flash.





















Pienso que esta casa está muy interesante. Me gusta el diseño de la casa y pienso que el arquitecto es muy inteligente. La casa es muy grande y es una casa y una oficina. También la casa tiene muchos dormitorios y baños. Me gusta esta casa mucho, pero quiero conocer por qué el arquitecto ha hecho esta casa con este diseño.