En un rincón sereno de Sagaponack, Nueva York, se alza una estructura que redefine la arquitectura residencial moderna. Además teje un relato profundo sobre sostenibilidad, historia, y estética. Se trata de la Lathhouse. Esta casa es un testimonio de cómo la inspiración sacada de nuestra historia puede dar forma al futuro del diseño sostenible.

Un nexo con la historia agrícola
La inspiración detrás de Lathhouse nace de la rica historia agrícola de la región, específicamente de una casa de listones. Es una estructura tradicional con cubierta a dos aguas, hecha primordialmente de listones de madera. Estas sencillas estructuras sirvieron como punto de partida conceptual para este proyecto. El revestimiento de madera recuperada le otorga a Lathhouse una pátina atemporal muy característica. Pero este material también hace eco de la estética de los graneros y dependencias habituales en los paisajes rurales. Este diseño conecta el presente arquitectónico con su herencia agrícola.

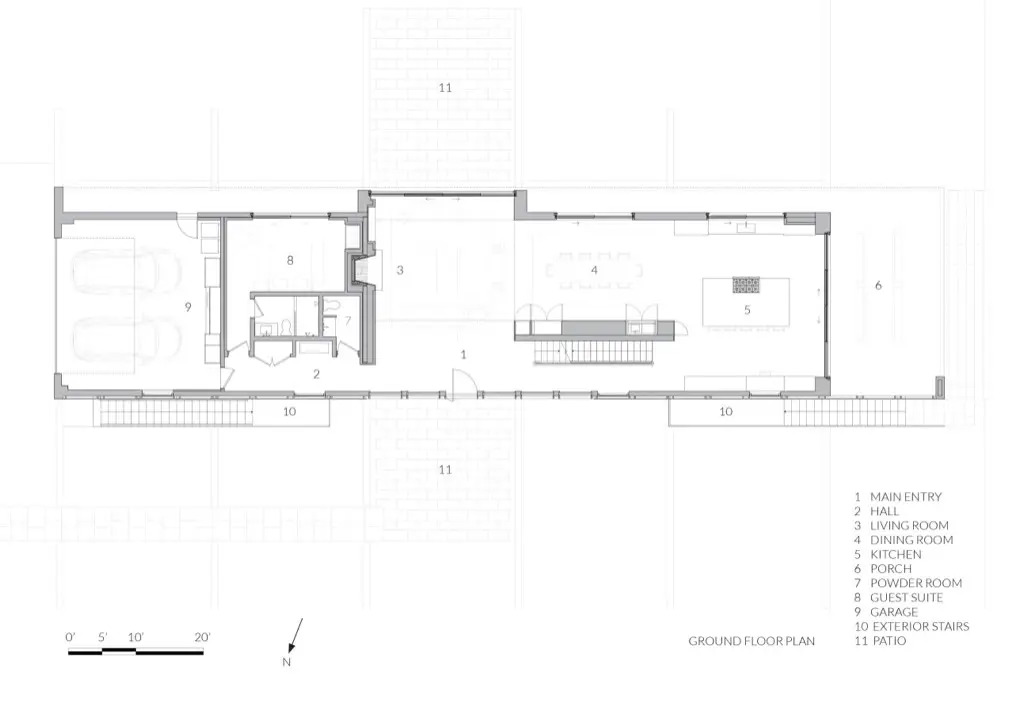
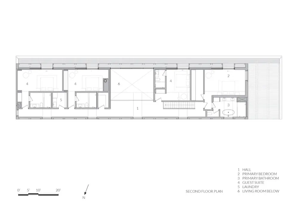
Diseño y Distribución de LathHouse (planos)
La residencia Lathhouse se orienta magistralmente de este a oeste, aprovechando al máximo la luz natural. Además ofrece vistas despejadas hacia un césped meridional espacioso. La topografía del terreno, de suave pendiente, junto con una elegante casa de la piscina, define con gracia las áreas de césped, piscina, y cancha de tenis. Este diseño optimiza el disfrute de los espacios exteriores, y asegura una interacción sin fisuras entre interior y exterior. Promueve además un estilo de vida que honra tanto la privacidad como la apertura hacia la naturaleza.

En el sótano se ha dispuesto una suite de invitados, gimnasio, bodega, sala de juegos, dormitorios con literas, lavadero, baño, y cuartos de instalaciones.
La planta baja está organizada con un gran espacio para sala de estar, comedor, y cocina. La living room dispone de chimenea y una terraza lateral, mientras que la cocina conecta con un porche. Este nivel también tiene una suite para huéspedes, aseo, y garaje para dos vehículos.
El resto de dormitorios están en la planta alta. Se organiza con un largo corredor, que conecta en su punto medio con un vacío que da a la sala de estar. En un extremo está la suite principal, y en el resto se distribuyen otras tres habitaciones de invitados. En total, la casa cuenta con 5 suites de este tipo.
La caseta de la piscina tiene vestuario, baño, sala de estar, y una terraza con pérgola.
Interiorismo: un diálogo entre luz y sombra
La influencia de las estructuras de listones se extiende hacia el interior de Lathhouse. Dentro se produce un juego de luces y sombras que danza sobre las paredes y techos. Crea una atmósfera dinámica que cambia con las horas del día. Los acabados interiores y el mobiliario responden a este diálogo. Estos elementos fusionan funcionalidad con una estética refinada que invita a la contemplación y al descanso. Desde la gran isla de la cocina, ideal para reuniones familiares, hasta las suites para huéspedes que ofrecen accesos al aire libre, cada espacio ha sido diseñado pensando en el confort y la conexión con el entorno.
Sostenibilidad y materiales
Quizás uno de los aspectos más notables de Lathhouse es su compromiso con la sostenibilidad. Queda evidenciado en la elección de materiales y métodos de construcción. El revestimiento consiste en madera desgastada, recuperada de cercas de nieve y tablas de corral antiguas. Este material cuenta una historia de reutilización y respeto por el pasado. Y además aporta a la casa una dimensión de belleza y durabilidad que desafía el paso del tiempo.


Otras características sostenibles de la casa son las siguientes:
- Sistema de climatización geotérmica.
- Aislamiento de poliuretano de celda cerrada.
- Sistema mecánico de aire fresco.
- Ventanas aisladas de alta eficiencia.
- La recolección de agua se realiza a través de un canalón y bajante oculto. Luego se distribuye uniformemente para mitigar la erosión.
- Toda la iluminación es tipo LED.
Un refugio de belleza y conciencia
Lathhouse no es solo una casa. Es una manifestación de cómo la arquitectura puede ser un puente entre pasado y futuro, entre estética y ética. En cada rincón de esta residencia, desde su estructura inspirada en las casas de listones hasta su enfoque sostenible en la construcción, se revela una historia de innovación, respeto por la naturaleza, y amor por el diseño. Los arquitectos crearon un espacio para vivir que supone un legado de cómo vivir bien. Se demuestra que la verdadera belleza reside en la armonía entre nuestro entorno y nosotros.

Este artículo no solo explora la belleza estética y el innovador diseño de Lathhouse sino que también destaca la importancia de la sostenibilidad y la historia en la arquitectura moderna. Con cada palabra, buscamos inspirar y educar, ofreciendo una ventana a la filosofía que puede transformar la manera en que concebimos y habitamos nuestros espacios.
La casa Lathhouse la diseñó BIRDSEYE, una firma pionera en el mundo de la arquitectura y la construcción. Cada uno de sus proyectos es una oportunidad para explorar cómo el diseño puede contribuir a un futuro más sostenible. Esta vivienda fue premiada con varios galardones, entre ellos el 2022 AIA Long Island Special Award: Sustainable Design Residencial.
Fotos de Michael Moran.
