Dancing Living House: casa minimalista para bailar

0
181

Esta vivienda podría llamarse «casa ménsula», «casa sin ventanas», pero es Dancing Living House, y pronto entenderás por qué. El cliente estaba buscando una casa en la que el comedor-sala de estar le sirviera de estudio de baile. También quería la opción de que en un futuro incluso le pudiera valer de escuela de danza.

dancing living house

Dancing Living House es ante todo una caja de sorpresas. Es otro de esos proyectos que rompe con lo convencional, tanto en su estructura como en su distribución. Estudiando las fotos, plantas, y secciones se encuentran cuatro puntos destacables:

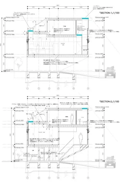
  1. El edificio es un prisma apoyado exclusivamente por sus laterales. No hay apoyos intermedios que estropeen algo fundamental en el programa: la sala de baile.
    mensula de vivienda japonesa
    Apoyos-ménsulas en la base.
  2. Para facilitar el aparcamiento en la planta baja, gran parte del volumen se encuentra en voladizo. Los apoyos se convierten en dos grandes ménsulas.
  3. Las principales fuentes de luz natural son cenitales. Las plantas principales de la casa reciben luz natural de huecos de cubierta (de lado a lado). Sucede tanto en la fachada principal como en la trasera.
  4. Tiene un espectacular acceso a los dos dormitorios (planta segunda). Lo hace con galería de piso de vidrio y paneles deslizantes en el frontal de las habitaciones.

Descripción de Dancing Living House

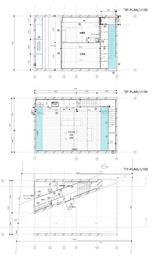
Planta Baja

La planta baja sirve de aparcamiento, pero está abierta tanto por el frontal como por el lado trasero de la casa. La entrada peatonal se hace por este mismo espacio cubierto. Precisamente es una de las ménsulas la que además de tener el arranque de la primera escalera, aloja un cuarto de baño. Está configurado para que pueda servir al público. Este espacio de entrada tiene una superficie de 17m2.

fachada dancing living house

escalera entrada a casa japonesa

Planta Primera

El primer tramo de escalera atraviesa por un «complicado» hueco del forjado, desde una entrada completamente blanca. A partir del primer piso gira en «L» hacia el segundo piso. La planta primera es un espacio multifuncional.  Tiene una cocina en un lateral, y puede funcionar de comedor, sala de estar, y el resto del tiempo como estudio de baile. Dos de las paredes de esta sala son espejos, que se pueden cubrir por completo por unas blancas cortinas. Se echa de menos algún elemento similar en la cocina para ocultarla durante las clases de baile. El total de este espacio es de 57m2.

sala multifuncional de dancing living house

sala dancing living house

Layered House: buscando poesía y provocando disfunción

Planta Segunda

Un hueco en la azotea sirve para dar luz cenital por la parte del fondo de la casa. Hay otro similar en la parte delantera, para iluminar la segunda escalera y esta zona del salón. Es interesante cómo se ha dejado el piso trasparente de la galería de dormitorios, para dejar pasar luz hasta la sala inferior. Las dos únicas ventanas en cerramientos son la que da a un lateral de la cocina, y otra en el baño de la planta baja (habitación de la bañera).

interiores de dancing living house

escalera superior dancing living house

Esta vivienda es para una familia con un hijo, de ahí que solamente se tengan dos dormitorios. Tienen la peculiaridad de que por el lado de entrada puedan estar completamente abiertos (hacia la gran claraboya de la escalera). O bien cerrarse con paneles deslizantes por guías en suelo y techo. Por el lado contrario dan a una terraza, que está unos 50 cms por encima de este piso. La superficie de la segunda planta es de 40m2.

dormitorio y terraza de casa minimalista

Hemos pintado de un color ciano las partes correspondientes a las claraboyas de la casa, tanto en planta como en las secciones. Por cierto, según las secciones, parece que la estructura tiene vigas metálicas aligeradas.

planos planta Dancing Living House

planos sección Dancing Living House

La casa Dancing Living es un proyecto de  Architect Label Xain, construido en Yokohama (Japón).

Reseña
Fachada
8.4
Organización
8.3
Diseño interior
8.7
Sostenibilidad
3.2
Calidad de ejecución
9.2
Adfer Dazne
Arquitecto español fundador de IS-ARQuitectura en 2006. Es autor de miles de artículos en los que se han analizado obras de numerosos profesionales de la arquitectura y el diseño.
dancing-living-house-Lo mejor- Esta vivienda es también un ejemplo de arquitectura minimalista, con soluciones sofisticadas ejecutadas con una gran limpieza de elementos. Lo que se ve es lo que hay. Es una lástima que los planos no tengan mejor calidad, porque este proyecto merece un análisis a fondo. El arquitecto supo dar lo que pedía el cliente, y lo hizo con mucho estilo. -Lo peor- No se entiende bien si las puertas de los dormitorios se deslizan por completo desde uno a otro lado. Eso significa que para cerrar el segundo dormitorio tienes que cerrar también el primero. Por tanto, se puede dar un conflicto de privacidad. No es la mejor solución. En lo que respecta a sostenibilidad, no disponemos de información relevante, por eso la puntuación es baja.

DEJA UNA RESPUESTA

Los datos de carácter personal proporcionados en este formulario serán tratados por Fermín Gómez, como responsable de esta web. La finalidad es añadir dicho comentario al artículo. La legitimación es tu consentimiento. Destino: los datos facilitados quedan guardados en nuestro servidor, y no son compartidos con terceros. Derechos: Podrás ejercer tus derechos de acceso, rectificación, limitación, y suprimir los datos en info@IS-ARQuitectura.com, así como el derecho a presentar una reclamación ante una autoridad de control. Hay información adicional y detallada en nuestra Política de Privacidad.

Por favor ingrese su comentario!
Por favor ingrese su nombre aquí

He leído y acepto la política de privacidad de este blog. *

[Todos los comentarios son moderados, ten paciencia, el tuyo se publicará pronto!]