El edificio de este artículo es una casa inmersa en un paisaje arbolado y próximo a un lago de Ontario (Canadá). El bello paraje propició que su diseño estuviera muy enfocado en el entorno. Sus 287 metros cuadrados resuelven perfectamente en dos plantas el desnivel del terreno. La obra es conocida como la Casa Lago Eels (también como Eels Lake Cottage), y hay que catalogarla como una vivienda de lujo con importantes características sostenibles.
Casa Lago Eels
Antes de explicar nada, hay que aclarar que los documentos publicados de esta vivienda aportan una información parcial. Salvo por la confusión a la hora de representar las escaleras, los dos planos de planta son claros, y están acompañados de una leyenda. Pero debido a la organización de los espacios, y topografía del terreno, se echa de menos un plano de sección. Las fotos tampoco ayudan demasiado. Por eso hemos realizado un esquema de la sección que presumiblemente tiene esta casa, en el que se han señalado las diferentes funciones.

Organización
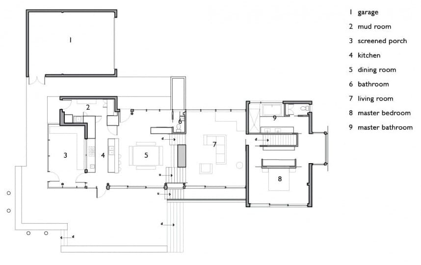
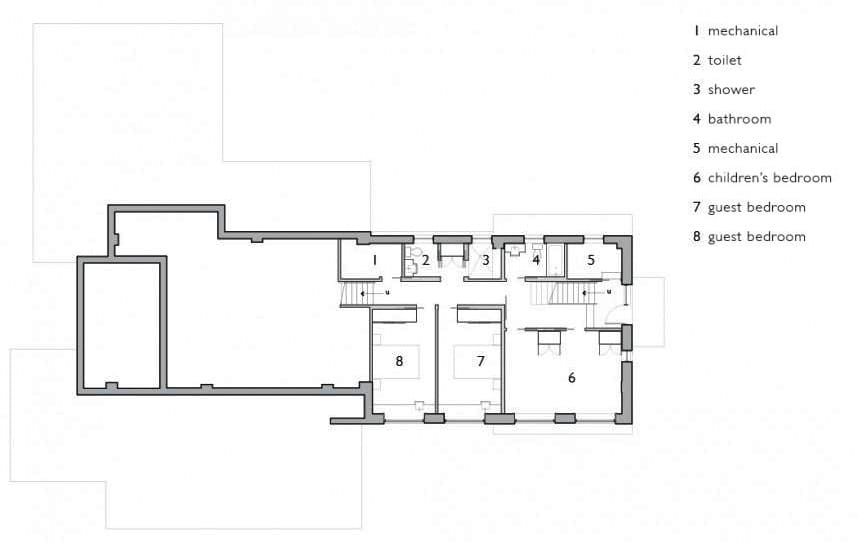
La Casa Lago Eels tiene una organización inteligente. Dicho de una manera resumida: es una estructura de 2 plantas con el piso inferior en sótano, pero con 4 niveles. Explicado de una manera más detallada, y según todos los niveles de forjado, ésta es la distribución:
- Sótano. En el nivel inferior, se desconoce lo que hay allí. No se ha publicado un plano de la planta sótano, pero sabemos que existe por la representación de escaleras en el plano de dormitorios.
- Nivel de dormitorios. Tiene una entrada desde el exterior. Aquí se organizan dos dormitorios para huéspedes, y el cuarto de los niños. También hay un par de cuartos de instalaciones, un aseo, y una ducha. Tiene dos escaleras. La que está en el vestíbulo conduce al sótano o a la planta superior; la escalera que está al fondo conecta con el siguiente nivel.
- Nivel Cocina + Comedor. Este piso es un espacio a doble altura con fachadas acristaladas que ayudan a conectar la casa con el bosque. En él se organiza el comedor y la cocina. Hay una habitación para el lavado y planchado de ropa (mud room) con salida directa al exterior. También se ha dispuesto un aseo. Este nivel tiene otras entradas con puertas de cristal, una de ellas desde el porche.
- Nivel superior. Esta zona alta de la casa se ha utilizado para colocar la sala de estar. Está comunicada con el comedor mediante una escalera que discurre junto a la chimenea. Desde unas grandes puertas correderas se puede acceder una terraza, y desde ahí bajar por una escalera exterior a la plataforma delantera del edificio. Este piso también contiene el dormitorio principal, que está tratado como un gran suite. Desde él se puede bajar (por la escalera principal) directamente hasta el nivel de dormitorios.
Volúmenes y estructura
La vivienda tiene volúmenes que sobresalen en todas sus fachadas, pero la cubierta plana es continua e inscribe a todo el edificio, aportándole uniformidad. Es una disposición que crea grandes voladizos en algunos puntos. Esta lujosa casa está ejecutada con una elegante estructura de acero y madera, y base de muros de hormigón (revestidos de ladrillo) que protege los dormitorios inferiores. Como la estructura está separada de la envolvente, la delicada ‘piel de vidrio’ puede envolver el volumen principal. Los soportes de acero quedan por tanto exentos.
Es preciso añadir que está diseñada con una sorprendente combinación de materiales, muchos de ellos aplicados con técnicas artesanales.
Características verdes
Durante el proyecto de esta moderna vivienda se realizó un estudio detallado de orientación respecto al sol. Los amplios vuelos de la cubierta y las ventanas eficientes protegen el interior de las ganancias solares en verano. Los árboles que rodean la casa son de hoja caduca, eso implica que en invierno las fachadas estén soleadas, adquiriendo ganancias de calor. Esta circunstancia es aprovechada por la capacidad de almacenamiento térmico del piso de hormigón pulido.
A continuación, una lista con las características verdes:
- Calefacción solar pasiva (ya mencionada).
- Ventilación natural y refrigeración pasiva.
- Iluminación natural.
- Optimización de material con un diseño modular.
- Materiales y acabados reciclables y no tóxicos,
- Climatización por suelo radiante con apoyo geotérmico, con recuperación de calor por ventilación.
- Iluminación de bajo consumo energético.
- Sanitarios de bajo consumo de agua.
El proyecto de la Casa Lago Eels fue realizado por el estudio Altius Architecture. El edificio fue galardonado con el Woodworks 2008 en los premios Interior Wood Design.