L House: casa de paneles thermopian

0
214

Estas imágenes corresponden al proyecto de una vivienda unifamiliar aislada, de aproximadamente 200m2. El volumen que le da forma no tiene muchas complicaciones, pues casi es tan simple como una casa del Monopoli. El proyecto se ubica en un verde paisaje de Lodz, la tercera ciudad más poblada de Polonia. Pero es también una casa de paneles thermopian.

L House casa de paneles thermopian

Características de la Casa L

La vivienda L House tiene dos plantas, es el símbolo de la simplicidad hecha casa, pero también esconde algunos secretos.

Un muro oblicuo, y de altura variable, parece indicar la entrada de la casa, cuando en realidad es una respuesta a una norma local de Lodz que obliga a adosarse a un lindero. Este elemento crea extrañas perturbaciones en el proyecto, tanto en planta como en algunas perspectivas. Por ejemplo, crea un efecto óptico en el que la cumbrera de la cubierta parece que está inclinada, cuando en realidad es horizontal.

Otro punto peculiar de la vivienda es el empleo del mismo material (y color) de revestimiento en todo su exterior. Se trata de Thermopian, un panel utilizado incluso en tejados, con cualidades aislantes (térmicas y acústicas). Tiene además la gran ventaja de producirse en cualquier color. Para evitar que todo el agua de lluvia deslice también por la fachada, al final del tramo inclinado de la cubierta se ha marcado una discontinuidad.

L House - Moomoo Architects

Organización

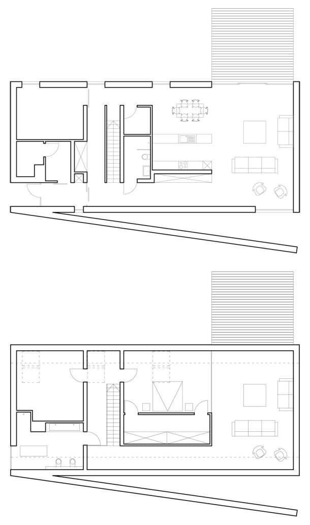
El interior está organizado con mayor complejidad de la que exteriormente se exhibe. Hay un salón con doble altura, sobre el que asoma parte del dormitorio principal de la casa. Esa habitación cuenta con un original vestidor de doble puerta en la pared cabecero de la cama. El cuarto de baño está compartido con otro dormitorio en ese mismo piso. Pero en la planta baja además hay un aseo con ducha. Lo más inquietante de los dibujos de la casa es el encuentro de ese muro exterior con la fachada. Es un encuentro mal resuelto, que se complica aún más con la ventana que hay en la entrada.

En el supuesto de que estos fotomontajes estén hechos sobre el entorno real de la casa, la norma municipal antes citada parece bastante absurda. Porque hay que aclarar que todas estas imágenes son renderizados del proyecto. Por esos motivos, y porque no hay más información sobre el interior, es por lo que NO se ha realizado valoración alguna de esta vivienda aislada.

L House - salón doble altura - exteriores L House - planos planta - Moomoo Architects

Esta casa de paneles thermopian es un proyecto de Moomoo Architects.

¿Qué es Thermopian?

Thermopian es un innovador material de construcción. Básicamente se trata de un panel prefabricado que tiene un núcleo de poliestireno expandido. Está reforzado con una malla de fibra de vidrio, y recubierto con polímero de cemento. Normalmente se utiliza para definir conductos de aire acondicionado, o para ocultar tuberías y bajantes de desagüe. Thermopian también se puede emplear para la decoración de interiores.

Por su composición y durabilidad, se puede utilizar tanto en locales húmedos como a la intemperie. Es bastante fácil de cortar, y por su capa de material aislante, puede emplearse como elemento que ayude a mejorar el aislamiento térmico y acústico de los espacios. Los tableros thermopian pueden fijarse sobre listones, enlucirse, pintarse, e incluso revestirse con azulejos.

Adfer Dazne
Arquitecto español fundador de IS-ARQuitectura en 2006. Es autor de miles de artículos en los que se han analizado obras de numerosos profesionales de la arquitectura y el diseño.

DEJA UNA RESPUESTA

Los datos de carácter personal proporcionados en este formulario serán tratados por Fermín Gómez, como responsable de esta web. La finalidad es añadir dicho comentario al artículo. La legitimación es tu consentimiento. Destino: los datos facilitados quedan guardados en nuestro servidor, y no son compartidos con terceros. Derechos: Podrás ejercer tus derechos de acceso, rectificación, limitación, y suprimir los datos en info@IS-ARQuitectura.com, así como el derecho a presentar una reclamación ante una autoridad de control. Hay información adicional y detallada en nuestra Política de Privacidad.

Por favor ingrese su comentario!
Por favor ingrese su nombre aquí

He leído y acepto la política de privacidad de este blog. *

[Todos los comentarios son moderados, ten paciencia, el tuyo se publicará pronto!]