La Residencia Skyline está ubicada en una finca de casi 0,7 hectáreas, a pocos minutos en coche del centro de Portland (Oregón, EE.UU.). Se construyó para una familia (de cinco miembros) que deseaba un hogar con abundante luz natural. El cliente también quería disfrutar de las vistas hacia el lado sur, y que tuviera cantidad de características sostenibles. Los arquitectos respondieron con una casa de energía cero que es toda una preciosidad.

El programa debía incluir una oficina para los padres, gimnasio, y habitación de entretenimiento en el sótano que estuviera insonorizada.
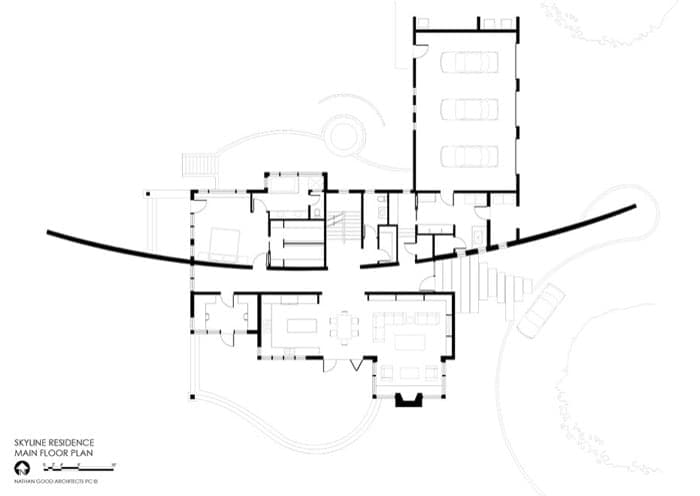
El edificio se colocó al norte de la parcela, con el fin de alejarse del ruido del Skyline Boulevard. La orientación optimiza la entrada de luz natural, al tiempo que facilita las vistas hacia el jardín de la casa.
Esta lujosa casa con oficina sigue el trazado de un muro curvo gris, colocado en dirección este-oeste. Esto provoca que las habitaciones sociales se queden en el lado sur, mientras que las privadas y auxiliares se sitúan al norte. Para minimizar su huella, y garantizar la buena iluminación natural, el programa se organiza en tres pisos, alcanzando una superficie total de unos 390m2.

La planta principal comprende el vestíbulo de entrada, que es muy alargado. Hay una gran sala que funciona como cocina, comedor, y sala de estar. También está aquí el dormitorio principal (suite), una habitación de trabajo, la despensa, cuarto de aseo, cuarto de servicio con lavadero, y un gran garaje. Al jardín principal se accede por un gran porche, que tiene un borde sinuoso.
La planta superior sirve para organizar los tres dormitorios de los hijos, todos ellos con cuarto de baño propio. De esta casa de energía cero solo se ha publicado un plano de la planta baja. Pero gracias a las fotos, se sabe que las habitaciones de arriba se distribuyen a lo largo de una galería. Es un corredor que sigue la curva del muro gris, y que recibe luz de la fachada recta orientada al sur.
En el sótano (planta baja desde el norte) está la sala de entretenimiento, gimnasio, aseo, cuarto de máquinas, y almacenamiento.
Casa de energía cero, con certificado LEED Platino

No cabe duda que impresiona la gran superficie de paneles solares que esta casa tiene en su tejado principal. Con esa instalación que es capaz de generar toda la electricidad que consume.
Está construida con materiales de procedencia local, no más lejos de un radio de 800 km. Toda la piedra, encimeras, y azulejos son de los Estados Unidos. Los únicos materiales importados están relacionados con los electrodomésticos y el equipo de climatización.
También hubo una reutilización de materiales de la anterior casa de la familia. Se aprovecharon vigas de madera, y hormigón de cimentación para triturarlo y utilizarlo como base para el camino de acceso. También se recuperaron las maderas de algunas carpinterías. En relación a la madera nueva empleada, hay que decir que posee certificación ecológica FSC. Esto incluye la que se utilizó para los suelos, que es madera de madroño de origen local.
La Residencia Skyline posee una instalación de fontanería que ahorra mucha agua. Tiene grifos de bajo caudal, y dobles cisternas de descarga en los inodoros. Además la casa posee la capacidad de almacenar todo el agua de lluvia de la finca; y todas las aguas residuales son tratadas en un tanque biomecánico. Algunas cubiertas ajardinadas se instalaron después de realizar estas fotos.
Por todas estas cualidades, la casa posee un certificado LEED Platino.

El proyecto y el diseño de los espacios interiores de esta casa de energía cero corrió a cargo de Nathan Good Architects. Los jardines los realizó Cynthia Woodyard. Fotos de Jeremy Bittermann.














Interesante diseño arquitectónico e innovador.