La Casa Menta se ubica en la provincia de Tarragona (España). Este proyecto se planteó para funcionar como casa de fin de semana, de diseño simple, y fácilmente utilizable. Según los arquitectos, esta vivienda funciona como una “caja viva” que se puede abrir, cerrar, encender, calentar, y enfriar de manera eficiente. Su volumen está compuesto por dos paralelepípedos desplazados, uno más ancho que el otro, y de una sola planta. Además este “cubo” racional permite una transición muy fluida entre el interior y el exterior.
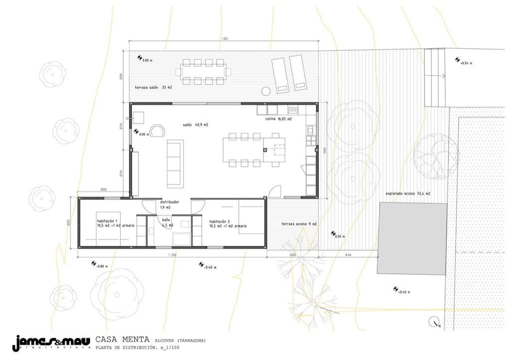
El edificio tiene un total de 100m2, y en esa superficie se ha encajado una vivienda de dos dormitorio, y cuarto de baño compartido. La zona de vida está organizada en la caja más grande, con la sala, cocina, y comedor en un único espacio.
Un punto destacable de la Casa Menta tiene que ver con su fachada. Está formada por paneles de acero corten, que proporcionan un aspecto oxidado a todo el edificio. En ella hay unos paneles perforados que dibujan hojas de menta, y que forman parte de las contraventanas. Estos elementos añaden valor estético a la vivienda, mejorando su eficiencia energética, ya que protegen de la radiación solar y permiten el paso del aire.
El arquitecto planteó esta obra basándose en la arquitectura bioclimática. Por eso la forma y posición de la casa se adaptan a sus necesidades energéticas. Dichas estrategias potencian la ventilación natural, y el diseño solar pasivo.
Con módulos prefabricados
Menta House la hizo una empresa que habitualmente utiliza contenedores de carga. Pero en esta ocasión se construyó con módulos prefabricados metálicos. Fueron necesarios 4 módulos, con paredes compuestas por paneles de celulosa, con capa de material aislante ecológico, hecho a partir de lana de oveja.
Se completó con instalación de calefacción por biomasa, y paneles solares, y su Calificación Energética es A. Según el arquitecto, gracias a esa eficiencia esta vivienda reduce hasta un 60% su consumo de energía.
La obra costó unos 100.000€, y en tan solo 3 meses se fabricaron los módulos.
Vivienda construida por InfiNiski
Esta casa fue construida por la empresa InfiNiski, con presencia tanto en Chile como en España. Está especializada en construir con materiales verdes o reutilizados de otros sitios, no contaminantes en un 80%. Lo hace con las mismas garantías de calidad que las de una construcción convencional. Esta idea no es nueva, pero facilita bastante al cliente que el proyecto se haga de forma integral. Se toma como punto de partida un diseño de vanguardia, basado en la arquitectura bioclimática, al cual se le integran sistemas de energías renovables. Todo ello se hace además a un bajo coste.

InfiNiski es capaz de construir una casa de 150m2 en muy poco tiempo, siguiendo un sistema híbrido, ya que no impone ningún diseño al cliente. Y a la vez se basa en la fabricación modular. Se construye a partir de contenedores de carga, acero, y aluminio reciclado, vías de tren, aislantes de celulosa reciclada, paneles OSB, maderas recuperadas… A ello se suma la tecnología de las energías renovables y alternativas, como los paneles térmicos solares y fotovoltaicos, energía geotémica, aerogeneradores, y el empleo de vidrios termopanel.
El estudio James & Mau es el socio fundador de Infiniski, de los arquitectos Jaime Gaztelu (España) y Mauricio Galeano (Colombia). Llegaron a Chile con la colaboración de la constructora J. Sepúlveda. InfiNiski también construye otras tipologías además de viviendas, como oficinas, colegios, refugios turísticos…
Puede haber información sobre Menta House: en el sitio web de InfiNiski.