Revisando viejas notas guardadas, decidí volver a visitar ciertos lugares de la web relacionados con la construcción prefabricada. Me estoy refiriendo a anotaciones creadas hace más de cinco años. Muchos de esos lugares ya ni existían, en su lugar aparecía un “error 404”. O en su lugar aparecía la típica página avisando que ese dominio estaba disponible para compra (!). Pero afortunadamente el sitio sueco Arvesund aún seguía vivo. Dispone de una amplia y variada colección de diseños donde elegir, y parece que el negocio va bien. En su blog hay un montón de noticias con fotos de las casas que construyen. En el mundo de las casas prefabricadas, la firma sueca Arvesund destaca con su producto estrella: la casa Dalåsen. Este artículo explora con detalle esta pieza arquitectónica, que demuestra que la grandeza no siempre reside en la complejidad del diseño.

La casa prefabricada Dalåsen 65
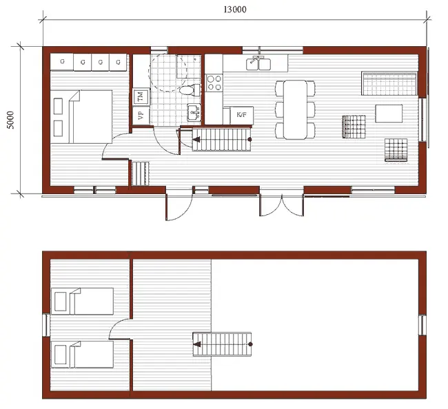
El arquitecto Gunnar Bäckman, inspirándose en los graneros nórdicos, logró simplificar al máximo el concepto de cabaña de madera. La Dalåsen, con su planta rectangular y tejado a dos aguas, encarna la esencia de la sencillez. Con 13 metros de longitud y una anchura de 5 metros, ofrece un espacio más que suficiente para una acogedora casa de vacaciones. El fabricante ofrece otros modelos más grandes, el que aparece aquí es el Dalåsen 65.
La distribución interna refleja la funcionalidad en su máxima expresión. La mitad de la casa se dedica al espacio vital: sala, comedor, y cocina. La otra mitad alberga un cuarto de baño completo y un dormitorio espacioso. Además, el modelo Dalåsen incluye un ingenioso espacio superior, accesible por una cómoda escalera, que puede adaptarse según las necesidades del propietario. Con una superficie útil de 55m2 en planta baja y un total de 65m2, incluyendo el loft1, ofrece versatilidad en un espacio compacto.

Una sencilla estructura
La estructura de la cabaña es tan sencilla como elegante. Una «cáscara» autoportante, diseñada para resistir como una casa convencional, pero con la ventaja de ser completamente personalizable en su acabado. Este enfoque de construcción asegura un aislamiento eficiente, permitiendo el uso de la casa durante todo el año.
La casa prefabricada Dalåsen se entrega en kit, facilitando su montaje total o parcial, según las preferencias del propietario. La documentación clara acompaña el kit, garantizando una experiencia de construcción fluida.
Lo que hace destacar aún más a la Dalåsen es su compromiso con la sostenibilidad. Todos los materiales utilizados son naturales y producidos localmente en Suecia, contribuyendo a un producto final respetuoso con el medio ambiente.
La vivienda Dalåsen es un testimonio de que la simplicidad puede ser sinónimo de elegancia y funcionalidad. Desde su diseño hasta su construcción y materiales, Arvesund ha creado una solución arquitectónica que combina la estética nórdica con la robustez, ofreciendo un hogar acogedor y sostenible.

Más información sobre la casa Dalåsen, en la web de Arvesund.
Nota a pie de página
- La superficie construida del loft es de 20m2, 10 de ellos están incluidos en el espacio habitable. ↩
 
				












