Tiny house de 32m2

0
261

La vivienda móvil Greenmoxie fue construida por personas que están muy involucradas con la sostenibilidad. Se trata del primer proyecto de tiny house que llevaban a cabo y, francamente, les quedó de lujo.

Características de la vivienda móvil Greenmoxie

La pequeña vivienda Greenmoxie está construida sobre un remolque de 3 ejes. Esto la convierte en un hogar ideal para quienes les gusta ir de nómadas por la vida. Su diseño se ajusta a lo que normalmente vemos en este tipo de construcciones. Pero también incorpora otros aspectos más novedosos. Un ejemplo es su terraza levadiza de entrada, que se abate mediante un mecanismo electrónico. Este detalle hace que su entrada se parezca más a la de una “casa normal” con porche, al tiempo que permite la movilidad.

vivienda móvil Greenmoxie de madera

Vivienda móvil de madera, que además es autosuficiente

Greenmoxie es una de las tiny houses menos diminutas que hayamos visto, pues alcanza una superficie de 31,5m2. Su fachada está revestida de madera de cedro quemada, empleando la técnica shou-sugi-ban. Los suelos son de roble, el techo es de madera recuperada de un granero, al igual que las ventanas. Dentro hay una sala, cocina, y cuarto de baño al fondo. Una escalera hecha de estantes sirve de acceso al loft, lugar donde está el dormitorio. La cubierta posee una forma quebrada, lo que permite una ventana horizontal en el altillo, para facilitar su ventilación.

Una puerta corredera separa el cuarto de baño del resto de la vivienda. Está equipado con inodoro de compostaje, lavabo, y una estupenda ducha. Hay una pequeña estufa para calentar este acogedor hogar, además de un calentador de gas. Y para hacerla más eficiente, se instaló un sistema de ventilación con recuperación de calor.

terraza levadiza vivienda Greenmoxie

Cómo hacer una casa móvil

La vivienda Greenmoxie se construyó para poder estar desenchufada de la red. Por ese motivo tiene paneles solares en su tejado (1kW), suficientes para su funcionamiento, que están apoyados por un conjunto de baterías. Puede también recoger y purificar el agua de lluvia, para hacerla potable.

El aislamiento es de espuma proyectada, y la iluminación es de tipo LED.

Algunas observaciones

Sobre esta encantadora vivienda, hay que decir que en su equipamiento no tiene mucho sentido esas estanterías. Hay varios motivos para utilizar armarios con puertas, en vez de estantes. Uno de ellos es que los objetos no se caerán al suelo cuando la casa se mueva. Y hay otro aún más importante: el poco espacio de una tiny house se debe aprovechar para almacenamiento, y no tanto para decorar.

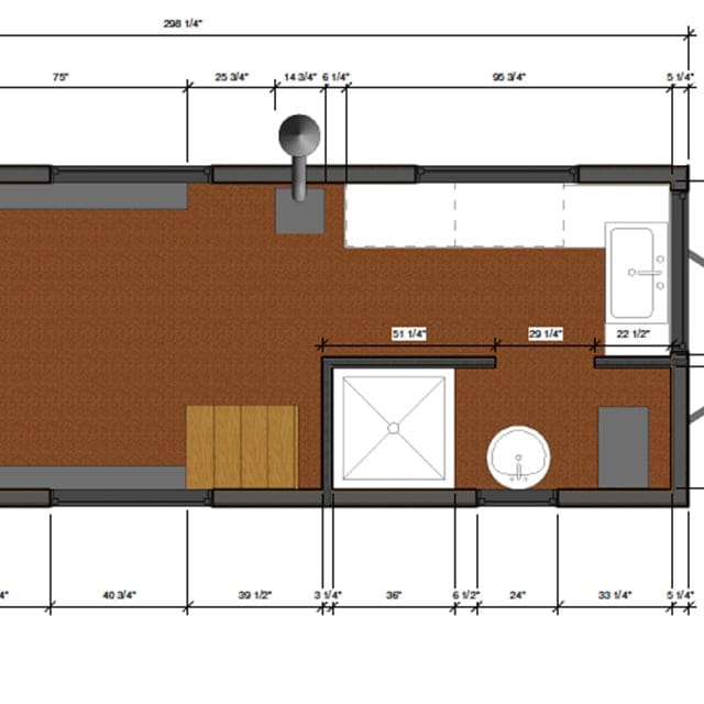
El modelo construido finalmente no se ajusta a lo que se ve estrictamente en el plano de sección y en el de planta. De manera muy acertada, el cuarto de baño está construido en el fondo de la casa. Así quedó mucho mejor.

interior vivienda Greenmoxie

La vivienda móvil Greenmoxie fue construida por gente que promueve el estilo de vida sostenible y la aventura.

Adfer Dazne
Arquitecto español fundador de IS-ARQuitectura en 2006. Es autor de miles de artículos en los que se han analizado obras de numerosos profesionales de la arquitectura y el diseño.

DEJA UNA RESPUESTA

Los datos de carácter personal proporcionados en este formulario serán tratados por Fermín Gómez, como responsable de esta web. La finalidad es añadir dicho comentario al artículo. La legitimación es tu consentimiento. Destino: los datos facilitados quedan guardados en nuestro servidor, y no son compartidos con terceros. Derechos: Podrás ejercer tus derechos de acceso, rectificación, limitación, y suprimir los datos en info@IS-ARQuitectura.com, así como el derecho a presentar una reclamación ante una autoridad de control. Hay información adicional y detallada en nuestra Política de Privacidad.

Por favor ingrese su comentario!
Por favor ingrese su nombre aquí

He leído y acepto la política de privacidad de este blog. *

[Todos los comentarios son moderados, ten paciencia, el tuyo se publicará pronto!]