Pequeña casa de madera, con baño, cocina, y altillo

0
278

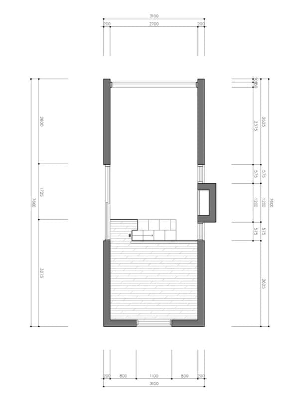
La casita de madera Slow Town es una construcción que ocupa una superficie de 23,56m2. Se creó para proporcionar alojamiento extra durante unos campeonatos olímpicos, y siguiendo estándares de sostenibilidad.

Casita diminuta Slow Town

Esta casita se ubica en Gangwon, ciudad anfitriona de los Juegos Olímpicos de Invierno 2018 (Pieonchang, Corea del Sur). Ese lugar es uno de los más limpios del país, por eso las exigencias para preservar el paisaje natural fueron muy altas. La pequeña casa Slow Town se creó precisamente para maximizar las instalaciones residenciales vinculadas a dicho evento deportivo. Esta diminuta estructura se construyó con materiales respetuosos con el medio ambiente, principalmente con madera certificada.

casita Slow Town

Lo primero que sorprende de esta casita es la variedad de huecos: cuadrados, rectangulares, y uno circular arriba. Dos de ellos sirven de acceso a la casa. El principal está definido por una doble puerta corredera que conecta la sala con una terraza. La otra puerta está en la cocina. La casita Slow Town también cuenta con cuarto de baño, que está revestido en su totalidad con madera. Las tablas del suelo dejan espacio para el desagüe del agua de la ducha. Es un detalle poco frecuente, que hace que el espacio se vea aún más grande de lo que es.

exteriores casita Slow Town Corea del Sur

La gran inclinación de los faldones de cubierta aumenta la habitabilidad del altillo, que como suele ser habitual en estas construcciones, está destinado al dormitorio. La cama se coloca a un lado, dejando el resto del espacio libre. Ahí se ha dispuesto una pequeña estantería-mesita de noche. Un detalle especial es la escalerilla de acceso al altillo, pues funciona también como un estante de almacenamiento.

A pesar de que el baño dispone de lavabo, la pequeña cocina tiene fregadero. Está mínimamente equipada, pero con muy buenos acabados.

Como se puede apreciar en las fotos, el interior de esta tiny house está revestido de paneles de madera, que le aportan una textura lisa y moderna.

Slow Town escalera altillo de madera

El proyecto de la casita Slow Town fue realizado por los estudios de arquitectura The Plus Partners, y DNC Architects.

Adfer Dazne
Arquitecto español fundador de IS-ARQuitectura en 2006. Es autor de miles de artículos en los que se han analizado obras de numerosos profesionales de la arquitectura y el diseño.

DEJA UNA RESPUESTA

Los datos de carácter personal proporcionados en este formulario serán tratados por Fermín Gómez, como responsable de esta web. La finalidad es añadir dicho comentario al artículo. La legitimación es tu consentimiento. Destino: los datos facilitados quedan guardados en nuestro servidor, y no son compartidos con terceros. Derechos: Podrás ejercer tus derechos de acceso, rectificación, limitación, y suprimir los datos en info@IS-ARQuitectura.com, así como el derecho a presentar una reclamación ante una autoridad de control. Hay información adicional y detallada en nuestra Política de Privacidad.

Por favor ingrese su comentario!
Por favor ingrese su nombre aquí

He leído y acepto la política de privacidad de este blog. *

[Todos los comentarios son moderados, ten paciencia, el tuyo se publicará pronto!]