Pequeña construcción prefabricada de planta elíptica

0
240

Su autor la define como un híbrido entre casa y caravana. Creemos que no le falta razón, ya que por su diseño y tamaño, la casita prefabricada Machine Home tiene una clara vocación nómada. Pero hay que reconocer que también es más confortable, y está mejor equipada, que la mayoría de casas diminutas que hayamos conocido.

Por su acabado minimalista podríamos pensar que se trata de otro diseño japonés, pero lo cierto es que estamos ante una de las pocas casitas prefabricadas (de calidad) que se han hecho en España.

casita prefabricada Machine Home

Casita prefabricada Machine Home

Machine Home se produce íntegramente en taller, a partir de una estructura de perfiles metálicos, y se transporta una vez acabada al sitio, para ser luego colocada sobre una sencilla cimentación. Esta magnífica casita móvil desenchufada está pensada para conectarse a los servicios públicos de agua, electricidad, alcantarillado. Aunque también puede funcionar de manera autosuficiente en cuanto a agua potable, riego, saneamiento, depuración, energía, y comunicación.

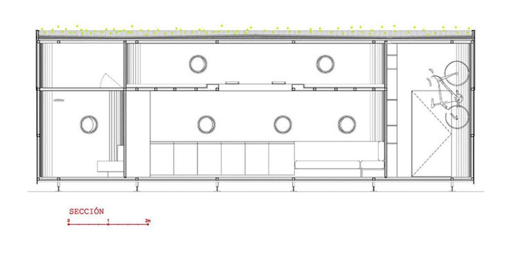
En su interior hay un espacio central bastante despejado, ocupado por la cocina, comedor, y la sala. Al nivel superior se accede por unas escalerillas que hay en un gran hueco del techo; una vez arriba, a ambos lados encontraremos un área para dormir (ver planos). Es interesante cómo está resuelto el diseño de las escalerillas: se quedan horizontales (arriba) cuando no se utilizan.

casita prefabricada Machine Home - interior

En este diseño de planta casi elíptica, los extremos se han ocupado con las funciones que menor grado de habitabilidad requieren. En uno de ellos está el baño, con un espacio para instalaciones en la parte superior; el otro se ha destinado a cuarto de almacenamiento, siendo accesible desde una puerta exterior.

Debido a la curvatura de su fachada, todas sus ventanas son circulares (tal vez demasiado pequeñas). La puerta de entrada es muy grande, y funciona con un mecanismo hidráulico.

Un hogar personalizable

La casita prefabricada Machine Home también permite un alto grado de personalización. Incluso se puede complementar con una terraza flotante, cocina exterior, pérgola, alberca… Puede equiparse con todos los electrodomésticos necesarios, una estufa de biomasa, y aparatos climatizadores.

Machine Home casita prefabricada bano sala

Este proyecto de casita prefabricada lo desarrolló el arquitecto Juan Antonio Sánchez Morales (Ad-Hoc). Fue galardonado en los XVII Premios de Arquitectura de la Región de Murcia (España). Fotos de David Frutos Ruiz.

Adfer Dazne
Arquitecto español fundador de IS-ARQuitectura en 2006. Es autor de miles de artículos en los que se han analizado obras de numerosos profesionales de la arquitectura y el diseño.

DEJA UNA RESPUESTA

Los datos de carácter personal proporcionados en este formulario serán tratados por Fermín Gómez, como responsable de esta web. La finalidad es añadir dicho comentario al artículo. La legitimación es tu consentimiento. Destino: los datos facilitados quedan guardados en nuestro servidor, y no son compartidos con terceros. Derechos: Podrás ejercer tus derechos de acceso, rectificación, limitación, y suprimir los datos en info@IS-ARQuitectura.com, así como el derecho a presentar una reclamación ante una autoridad de control. Hay información adicional y detallada en nuestra Política de Privacidad.

Por favor ingrese su comentario!
Por favor ingrese su nombre aquí

He leído y acepto la política de privacidad de este blog. *

[Todos los comentarios son moderados, ten paciencia, el tuyo se publicará pronto!]