KOBY: una casa modular

0
155

En el corazón de Albion, Michigan, se esconde un tesoro arquitectónico que redefine la idea de un refugio de paz y serenidad. Se trata de la casa KOBY, y representa la perfecta unión entre innovación, sostenibilidad, y diseño. Con dos módulos prefabricados que suman 102 metros cuadrados de espacio habitable, esta vivienda no es solo un lugar para alojarse. Es una experiencia transformadora para quienes buscan un momento de tranquilidad lejos del bullicio cotidiano.

casa Koby exterior

Una casa con corazón

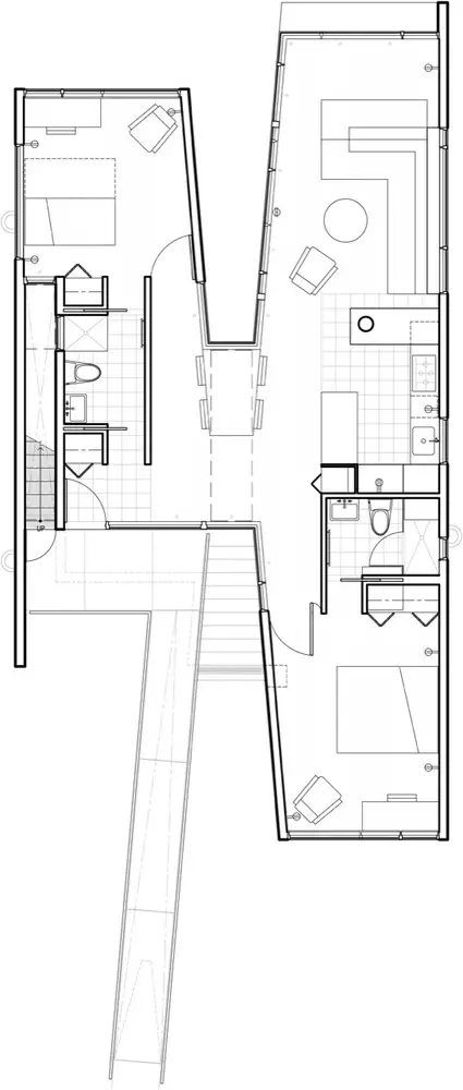
Situada a orillas de un idílico lago, la casa KOBY no es solo un logro arquitectónico. Es un santuario diseñado con el propósito de servir como estancia a familias que visitan un internado para jóvenes con problemas. La estructura, compuesta por dos módulos prefabricados, se organiza en forma de «X» abierta. Tiene un frontal principal que ofrece vistas panorámicas gracias a su fachada acristalada.

Diseño e innovación

La innovación y sostenibilidad son pilares fundamentales en el diseño de KOBY. La estructura de acero del edificio, revestida con madera de cedro certificada, no solo garantiza durabilidad sino que también se integra armoniosamente con el entorno natural. Los suelos de la cocina y baños, hechos de baldosas con material reciclado, reflejan el compromiso con el medio ambiente.

El comedor, con su mesa de madera en voladizo, se sitúa en el corazón de la casa. Está diseñado como un espacio terapéutico que invita a la unión familiar. La luz natural inunda el interior, creando un ambiente cálido y acogedor que se extiende a los dos dormitorios. Dichas habitaciones están diseñadas para ofrecer confort y privacidad.

mesa comedor casa Koby

sala estar casa Koby

Una construcción singular

Lo más destacable de la casa KOBY es su proceso de construcción, pues se fabricó íntegramente en un taller de 11.000m2. Posteriormente se trasladó y colocó sobre una cimentación de hormigón armado en su ubicación final. Todo ese trabajo se completó en el transcurso de un solo día (ver vídeo). Este método minimiza el impacto ambiental en el sitio de construcción, y demuestra la eficiencia y precisión del diseño modular.

Un exterior que inspira

El exterior está revestido con planchas metálicas, y hay una rampa de suave pendiente. Se integra perfectamente en el paisaje, respetando la belleza natural del entorno. La cubierta practicable, accesible mediante escaleras laterales, ofrece un espacio adicional para disfrutar de vistas sin igual. Las instalaciones situadas en un espacio inferior garantizan que todas las necesidades de los residentes estén cubiertas.

Conclusión: un refugio para el alma

La casa KOBY es más que un simple edificio, es un refugio para el alma. Su buen diseño, enfoque sostenible, y construcción innovadora, la convierten en un modelo a seguir en la arquitectura moderna. Para familias que buscan un espacio de paz y reflexión, KOBY ofrece una experiencia única. Lo hace combinando la belleza del entorno natural con un diseño arquitectónico excepcional.

Para gente interesada en la arquitectura sostenible y el diseño innovador, KOBY es una fuente de inspiración. También es un recordatorio de lo que es posible cuando la creatividad se une con el compromiso ambiental.

rampa entrada casa Koby

La casa KOBY es un proyecto nacido de la colaboración entre Garrison Architects y la constructora Kullman.

Adfer Dazne
Arquitecto español fundador de IS-ARQuitectura en 2006. Es autor de miles de artículos en los que se han analizado obras de numerosos profesionales de la arquitectura y el diseño.

DEJA UNA RESPUESTA

Los datos de carácter personal proporcionados en este formulario serán tratados por Fermín Gómez, como responsable de esta web. La finalidad es añadir dicho comentario al artículo. La legitimación es tu consentimiento. Destino: los datos facilitados quedan guardados en nuestro servidor, y no son compartidos con terceros. Derechos: Podrás ejercer tus derechos de acceso, rectificación, limitación, y suprimir los datos en info@IS-ARQuitectura.com, así como el derecho a presentar una reclamación ante una autoridad de control. Hay información adicional y detallada en nuestra Política de Privacidad.

Por favor ingrese su comentario!
Por favor ingrese su nombre aquí

He leído y acepto la política de privacidad de este blog. *

[Todos los comentarios son moderados, ten paciencia, el tuyo se publicará pronto!]