Casa atípica en ladera

0
225

La Villa Jiyeh se construyó en un área residencial costero, a 23 kilómetros al sur de Beirut (Líbano). A pesar de estar en un terreno con una importante pendiente, toda la casa se desarrolla en una planta, salvo algunas dependencias que están en sótano. El arquitecto de este proyecto actuó “contracorriente”, resolviendo el programa de una vivienda unifamiliar en ladera de una manera atípica. El resultado final presenta bastantes dudas.

Villa Jiyeh fachada oeste

Villa Jiyeh

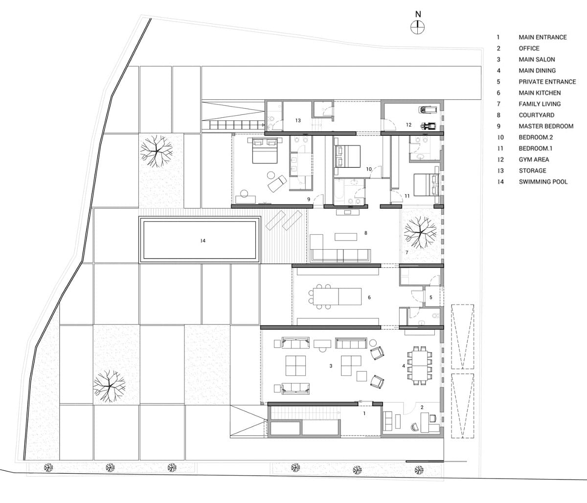
En la Villa Jiyeh, la organización del espacio de vida y dormitorios no se ajusta a lo que podíamos esperar en una casa en ladera. A pesar de tener la parcela una buena panorámica hacia el Mediterráneo, no se ha colocado en primera línea el salón, detrás los servicios, y al fondo los dormitorios. En vez de eso, está organizado en paralelo, y en cuatro volúmenes, funcionando por separado cada uno de ellos. Pero esta disposición no es del todo cierta, como se explica más adelante.

distribución funciones Villa Jiyeh

En el lado sur encontraremos el salón y comedor principales, además de un pequeño despacho. El segundo volumen contiene la cocina, con aseo y trastero situados a cada lado de una entrada privada (lado este). El tercer volumen de la casa es otra zona de vida (sala con tv). Está vinculada por el oeste con la piscina, y por el lado opuesto con un pequeño patio. En la cuarta y última zona hay tres dormitorios. Las mejores vistas se las lleva la habitación principal, dejando los otros dos con escasos huecos de ventilación.

No lo parece, pero el dormitorio central sí que tiene ventana, justo encima de la rampa que hay al norte. Por cierto, las rampas de piedra son puras anécdotas que crean circulación hacia la azotea de la casa. Dentro de la primera rampa está el acceso al sótano; en la opuesta se ha ubicado un gimnasio, ducha, aseo, y pequeño almacén.

Una organización desafortunada

Como se puede ver en el plano de planta (más abajo), esta disposición pone en total desventaja a dos dormitorios, y en cierta medida al comedor. Es cierto que están ventilados, pero son áreas de la casa que no disfrutan de vista al mar. Esto es algo imperdonable en un proyecto de esta naturaleza. La solución típica (typical plan), pero con los dormitorio situados en un segundo nivel, los hubiera favorecido a todos por igual. Eso habría dado como resultado un edificio de dos plantas, y mejor adaptado a la topografía.

piscina Villa Jiyeh casa en ladera fachada salon Villa Jiyeh casa en ladera Villa Jiyeh casa en ladera sala_tv

Este proyecto de la Villa Jiyeh lo realizó el estudio de Accent DG.

Reseña
Fachada
8.6
Organización
7.4
Diseño interior
8.5
Sostenibilidad
3.5
Calidad de ejecución
8.9
Adfer Dazne
Arquitecto español fundador de IS-ARQuitectura en 2006. Es autor de miles de artículos en los que se han analizado obras de numerosos profesionales de la arquitectura y el diseño.
villa-jiyehEl proyecto resuelve todas las dependencias principales en una planta, con espacios que siguen una secuencia paralela. El jardín de esta casa aislada está diseñado con pocos elementos, al igual que la fachada. Se tienen estupendas panorámicas hacia la costa, tanto desde la azotea, terraza, y habitaciones principales. Fue original el uso de rampas exteriores para acceder a la cubierta. Lo peor: El proyecto de la Villa Jiyeh se puede resumir de una manera sencilla: es una casa en ladera resuelta en una planta. Si bien esta organización está perfectamente explicada por el arquitecto, el resultado no cumple a rajatabla con uno de los objetivos: habitaciones con vistas al mar. No se describieron estrategias sostenibles, aunque sí se colocaron voladizos que disminuyen las ganancias de calor hacia el interior del edificio.

DEJA UNA RESPUESTA

Los datos de carácter personal proporcionados en este formulario serán tratados por Fermín Gómez, como responsable de esta web. La finalidad es añadir dicho comentario al artículo. La legitimación es tu consentimiento. Destino: los datos facilitados quedan guardados en nuestro servidor, y no son compartidos con terceros. Derechos: Podrás ejercer tus derechos de acceso, rectificación, limitación, y suprimir los datos en info@IS-ARQuitectura.com, así como el derecho a presentar una reclamación ante una autoridad de control. Hay información adicional y detallada en nuestra Política de Privacidad.

Por favor ingrese su comentario!
Por favor ingrese su nombre aquí

He leído y acepto la política de privacidad de este blog. *

[Todos los comentarios son moderados, ten paciencia, el tuyo se publicará pronto!]