Casas dentro de una casa

0
247

Escribir sobre arquitectura japonesa es casi lo mismo que hacerlo sobre arquitectura experimental. El proyecto de House K se completó en una zona residencial de Sapporo. Es una estructura con cubierta a dos aguas, que abarca una superficie construida de 193,77m2, sobre un solar de casi 380m2. A pesar de mantener una escasa separación con las construcciones vecinas, se trata de una casa aislada. Pero el interior de este hogar no se parece en nada a cualquier casa conocida.

House K habitaciones con tejado

House K

El cliente quería una casa de espacios abiertos, y que por fuera se percibiera como una vivienda. Esto último podría entenderse como una petición innecesaria, pero tampoco sería la primera vez que el proyecto de una casa pareciera otro tipo de edificio. Un ejemplo de ello lo vimos en la rara vivienda de hormigón diseñada por Eastern Design Office. Por eso motivo el arquitecto de este proyecto salvó este escollo con un tejado de lo más convencional.

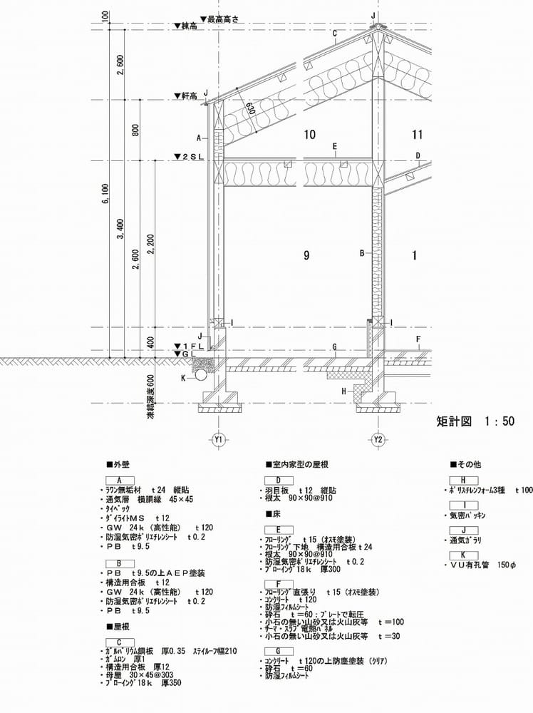
Otro capricho del cliente estaba relacionado con su estilo de vida rural. No quería desprenderse de la sensación de vivir en un pueblo, de estar rodeado de otras casas. El arquitecto resolvió este asunto diseñando un gran espacio interior, cerrado y protegido de las inclemencias del tiempo; pero dentro de él creó un ambiente que hacía creer que se estaba al aire libre. Por eso las habitaciones tienen forma de casa. Es decir, que el techo de las estancias no coincide con el de la “casa contenedor”, sino que cada una tiene su propio tejado.

fachada calle de la House K

cocina comedor Casa K

Organización

Este edificio se construyó ajustando al máximo la distancia permitida en dos de sus linderos. De esta manera se consiguió el espacio suficiente para tener un jardín en uno de los laterales de la parcela.

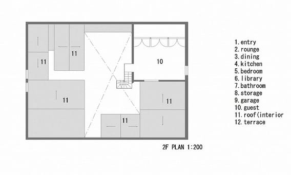
Casi todo el programa de la Casa K se organiza en la planta baja. La única excepción es el cuarto de invitados, que está colocado encima del garaje.

Desde el exterior, la puerta de entrada a la casa no se ve, eso es porque está situada en el lateral de un porche. Hay un doble vestíbulo de acceso, que conecta también con el garaje.

El espacio principal es una “plaza” donde se puede cocinar y comer, funcionando como zona neurálgica del resto del edificio. El el único espacio cuyo techo coincide con los límites que marca la cubierta de la casa.

Una “calle” conduce a los dormitorios, la biblioteca, y el cuarto de baño. La afición por la lectura en este hogar es bastante grande, por eso en la sala hay otra gran estantería.

La conexión de esta casa con su jardín se realiza a través de un gran hueco lateral acristalado que hay en la sala. También se puede hacer desde los dos dormitorios. Fuera queda una terraza de madera, con algunas jardineras.

El blanco y la madera es el acabado elegido para toda la casa. La fachada impresiona, porque toda ella está revestida también de listones de madera.

interior de la Casa K

House K es un proyecto del arquitecto japonés Yoshichika Takagi.

Reseña
Fachada
7.8
Organización
8.7
Diseño interior
8.4
Sostenibilidad
3.9
Calidad de ejecución
8.9
Adfer Dazne
Arquitecto español fundador de IS-ARQuitectura en 2006. Es autor de miles de artículos en los que se han analizado obras de numerosos profesionales de la arquitectura y el diseño.
house-kLa House K es realmente extraña, y seguro que puede ser un lugar muy divertido. Por dentro crea un universo único, que no se parece a nada conocido en arquitectura residencial privada. Lo peor: La organización interior, con diferentes tejados, tiene un gran problema: el mantenimiento y limpieza. Es debido principalmente a que las cubiertas de las habitaciones provocan encuentros y huecos de difícil acceso.

DEJA UNA RESPUESTA

Los datos de carácter personal proporcionados en este formulario serán tratados por Fermín Gómez, como responsable de esta web. La finalidad es añadir dicho comentario al artículo. La legitimación es tu consentimiento. Destino: los datos facilitados quedan guardados en nuestro servidor, y no son compartidos con terceros. Derechos: Podrás ejercer tus derechos de acceso, rectificación, limitación, y suprimir los datos en info@IS-ARQuitectura.com, así como el derecho a presentar una reclamación ante una autoridad de control. Hay información adicional y detallada en nuestra Política de Privacidad.

Por favor ingrese su comentario!
Por favor ingrese su nombre aquí

He leído y acepto la política de privacidad de este blog. *

[Todos los comentarios son moderados, ten paciencia, el tuyo se publicará pronto!]